您当前所在位置:
首页
> 政府信息公开
> 政策
> 按主题分类
> 农业、林业、水利
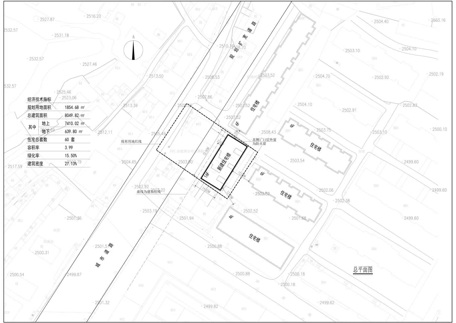
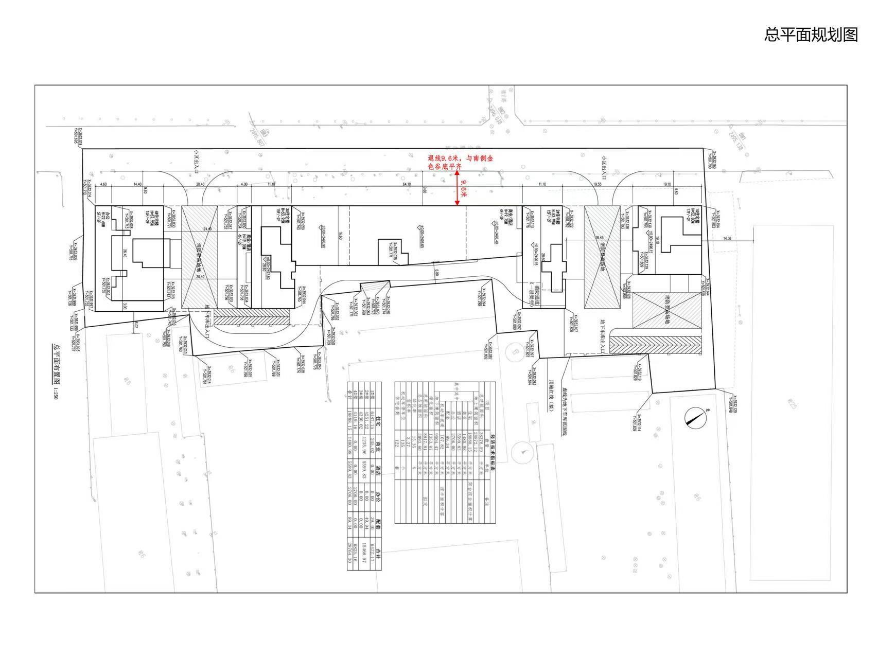
关于工程建设项目总平图等公示的报告
来源: 时间:2023年06月28日
关于工程建设项目总平图等公示的报告.pdf